Проект переустройства 3-х комнатной квартиры для семьи из 4-х человек: двое родителей и двух детей подростков - девочка и юноша.
Очень активная, позитивная семья, с противоречивыми взглядами на то, каким же должно быть их общее жилище, различиями в пожеланиях и по функционалу, и по оформлению. Единым требованием было только то, что необходимо найти возможность выделить 3 изолированные комнаты (спальня родителей и каждому ребенку по комнате), одну общую гостиную зону, а также вместительную гардеробную. Диван со спальным местом на кухне - ультиматум главы семейства :)
Объект - трехкомнатная квартира на 10м этаже 14-ти этажного монолитно-кирпичного дома.
Очень активная, позитивная семья, с противоречивыми взглядами на то, каким же должно быть их общее жилище, различиями в пожеланиях и по функционалу, и по оформлению. Единым требованием было только то, что необходимо найти возможность выделить 3 изолированные комнаты (спальня родителей и каждому ребенку по комнате), одну общую гостиную зону, а также вместительную гардеробную. Диван со спальным местом на кухне - ультиматум главы семейства :)
Объект - трехкомнатная квартира на 10м этаже 14-ти этажного монолитно-кирпичного дома.
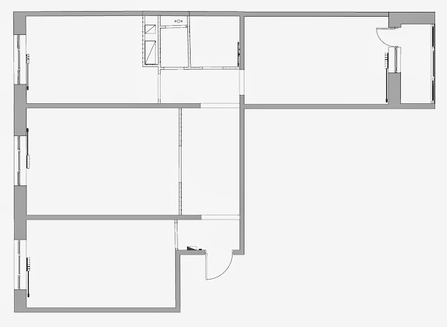
Исходная планировка.
Планировка после переустройства с расстановкой мебели.